Villa moderne de 322 m² avec piscine à Benicàssim – Gran Avenida

Benicàssim

Ref. 1022 473 m2 6 5 1
vente: 960.000 

Découvrez cette superbe villa indépendante de 322 m² située dans l’une des zones les plus recherchées de Benicàssim, à seulement 10 minutes à pied de la plage d’Els Terrers et à 20 minutes du centre-ville.

Conçue pour offrir confort, lumière et fonctionnalité, cette propriété allie modernité et élégance à chaque détail.


Distribution :


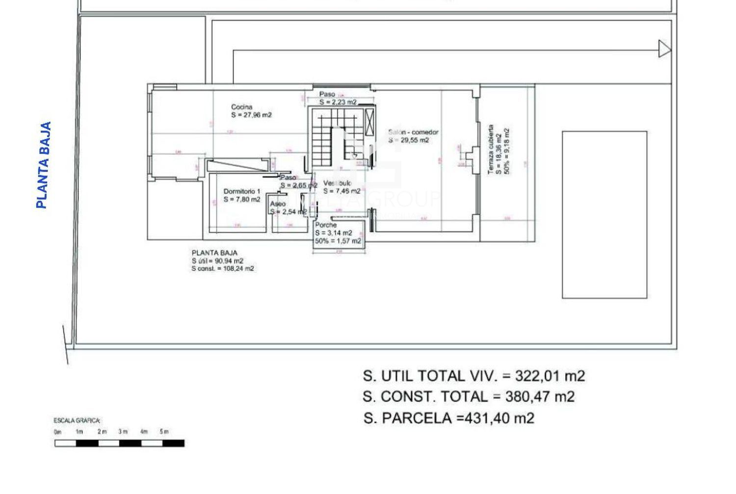
Rez-de-chaussée (90,94 m² utiles)

Grand salon-salle à manger lumineux ouvrant sur un porche vitré de 18 m² avec vue sur la piscine.

Cuisine indépendante avec îlot central, deux accès directs au jardin dont un vers la zone barbecue.

Une chambre individuelle avec placard intégré et une salle de bain complète avec douche à l’italienne.

Espace d’accueil distribuant l’accès à l’étage et au sous-sol.

Jardin paysagé avec gazon artificiel, coin détente, espace jeux, piscine et zone barbecue.


Étage (77,25 m² utiles)

Trois chambres doubles, toutes équipées de placards intégrés.

Suite parentale avec dressing, salle de bain complète (douche et baignoire) et terrasse privative de 18,88 m² orientée sud-ouest.

Deuxième chambre avec accès à un balcon de 6,5 m².

Troisième chambre disposant d’une salle de bain privée avec baignoire.

Salle de bain complète supplémentaire et puits de lumière dans le couloir apportant une belle luminosité.


Sous-sol (153,82 m² utiles)

Garage de 66 m² avec accès par rampe, pouvant accueillir plusieurs véhicules.

Deux grandes pièces polyvalentes (20–25 m² chacune), une salle de bain avec douche, buanderie avec local technique et deux espaces de rangement.


Prestations :

Piscine privée, porche vitré, climatisation gainable et par splits, chauffage au gaz de ville, fenêtres à double vitrage oscillo-battantes, volets électriques, stores motorisés avec capteurs de vent et commande Wi-Fi.

Propriété moderne, indépendante et parfaitement entretenue.


IBI : 600 €/an – VADO : 80 €/an.

Frais d’achat non inclus. Annonce non contractuelle.


✨ En plus de nos biens disponibles, Melya Group vous accompagne en tant que chasseur immobilier avec un service clé en main.

Vous avez des critères précis ? Nous recherchons et trouvons pour vous la propriété idéale, avec un accompagnement complet de A à Z : recherche, visites, négociation, démarches juridiques et administratives.

👉 www.elegancebymelya.com

Indice de location

Prix de vente 960.000 €
Prix/m² 2.030
Construit 473 m2
Utile 322 m2
Chambres 6
Salles de bain 5
Pièce de stockage
Garages 1
Orientation NORTE, SUR, ESTE, OESTE
Air conditionné
Piscine communautaire
Classification énergétique En attendant

Propriétés similaires:

 
REF. 1020  433 m2  4  3

Maison de 433 m² à Canet d’en Berenguer, avec 4 chambres, 3 salles de bain, piscine, terrasse, ascenseur et vue mer.

Un bien d’exception alliant confort et qualité de vie.

995 000 €
 
REF. 1043  140 m2  3  3

Maison ibicenca à Dénia – 3 chambres, 2 sdb, piscine privée, 2 terrasses, climatisation et 2 parkings. À deux pas de la mer.

849 000 €
Demander des informations

Si vous souhaitez plus d'informations sur cette propriété, veuillez remplir le formulaire: